Skip to main content
ToggleMenu

Learning Resource Center - Coming January 2027

April 2026 Update

From the basement to the rooftop, to the north, south, east and west, progress at the LRC is happening in every direction.

Crews are installing hydronic piping, ductwork, running conduit and tying the steam piping into the valves in the basement. The red base mounted circulating pumps are in and awaiting installation.  These move the hot water through the heating system to warm the building.

Up on the roof top work continues on the penthouses.  The work includes framing, putting up insulated metal panels (IMPs), installing piping for floor drains and piping insulation.  The IMPs are the “superhero” of the building envelope world.  These panels provide insulation, are an air and vapor barrier and are water resistant.  Everything you want to protect rooftop mechanical equipment. Work on the green roof has started and will continue into the coming months.

On the north (closest to Lyon) and south side (closest to Fountain) work continues on mechanical, electrical and plumbing (MEP) infrastructure.  Ceiling grids are becoming a prominent feature when you look up.

In the area to the east (the back of the building) crews have poured footings, installed rebar and formwork for several retaining walls. The cement company came and poured several of the walls.  More rebar and formwork are going up for additional retaining walls.

To the west (front of the building) the crew from Vos Glass is installing the glass in the curtainwall.  This part of the addition brings a fresh and inviting look to the LRC.  Concrete has been poured for the floor in the addition.  Work that might not be noticed from a distance is the installation of duct work and spraying fire proofing on beams.

Other visible work inside at LRC is the installation of large floor tile and floor to ceiling wall tile in different areas of the building.

Check back in May for more updates!  The countdown continues!  Nine months to go!

April Photos 2026

April Photos 2026

March 2026 Update

The Learning Resource Center (LRC) renovation/addition work is progressing and interior spaces are more defined. Drywall crews have put most of the drywall up, mudded, sanded and a have a good portion painted or ready to paint. Installation of drywall ceiling grids are happening all over the building. Once the above-ceiling infrastructure work is completed and inspected, installation of ceilings will start.

Break room areas with wooden cabinets are awaiting the addition of sinks and countertops. 

HVAC infrastructure work continues with tie-ins of piping and ductwork to terminal units. The terminal units, found at the end of the pipes and ductwork, control the flow of air to make the flow rate, temperature and humidity comfortable in rooms. Winter, spring, summer and fall, a room that is a comfortable temperature is the wish of us all!

Electricians are connecting controls to panels and circuits while continuing the overhead conduit installation. Hanging data cables is in process and that means all our devices can connect to the GRCC network and internet. HVAC, lights, internet and the GRCC network! What more do we need? Well, indoor plumbing is always nice.

Bathroom rough-ins continue throughout the building. While the LRC has existing sanitary sewer lines, crews are installing a new line at the addition. Sanitary lines transport sewage and wastewater from toilets and sinks to the waste water treatment plant.

What choices are there to get from Floor One to Floor Two? In the main lobby, there is a stunning set of stairs and modernized elevator. The elevator is equipped with new electrical and door components and is getting a new interior for the cab. There are also the four original stairways in each corner of the building.

Check back in April to see what new changes have happened. The countdown is starting, less than ten months until the LRC reopens!

February 2026 Update

If you like cranes, telehandlers, lifts and other types of construction equipment, then watching the outdoor construction activity at the LRC the last few months was right up your alley!

Pioneer Construction is continuing the detailing of the canopy steel. Detailing the steel is the small but time-consuming work following standing the steel up. It includes plumbing the building (making sure it is square and plumb), installing and tightening bolts and fully welding all of the connections.  

The big yellow crane arrived on site on Feb. 10. The crane operator was busy unloading and staging material on the roof.

The crew installed exterior metal framing for the addition and started adding steel decking. DensGlass, a yellowish/gold colored fiberglass gypsum sheathing is going up around the addition. DensGlass is a durable material that is moisture and mold resistant, fire resistant and is easy to install, all attributes you want in a building material!

Steel for the rooftop penthouse (where the heating, ventilation and air conditioning (HVAC) equipment lives) is up. Equipment that will live in the penthouse has arrived, this includes things like pumps, louvers, fans and more. Workers installed clips for the metal studs on the penthouse and stood on scaffolding to put up the metal studs.

Rain, snow, sleet and other winter wonders don’t keep this awesome construction crew from getting a lot of outside work done! March and spring time is right around the corner, hopefully conditions will be milder for them.

Check back next month for the “inside” scoop happening at the LRC.

January Update 2026

Cranes, lifts and workers with welders were busy installing the columns and welding the beams for the LRC canopy addition. Steel arrived late December and by the end of January the beginning of the addition was prominent. The snow, wind and cold did not stop progress!

HVAC work continues with continued installation and insulation of ductwork. The HVAC crew has installed the reheat coils. These HVAC components help to keep temperatures and humidity in buildings at a comfortable level.

Carpenters installed cupboards in the employee kitchenette. There are several electrical outlets on both sides and lots of storage space!

The concrete specialists cut long rectangles into the concrete floor and removed heavy slabs to make room for electrical boxes. Next, electricians came in and installed the conduit and pull wires in the new openings. Once the electrical work passes inspection, the crew will pour fresh concrete to fill the section. After the patches dry, the floor will be ready for the next steps when flooring occurs.

Painting continues in the office spaces with many additional spaces receiving their first coat of paint.

The project is now in the phase where lots of things are happening, but the progress isn’t always noticeable to the average person. The work, for now, will be more focused on infrastructure versus appearance. This includes installation and continuous work on things like:  fire suppression, domestic water mains, gas lines, terminal units, hydronic piping, overhead conduit, electrical floor boxes, ductwork, elevator work, hollow metal frames, floor prep, restroom piping and access control wiring for security systems to name a few!

Check back next month to see what changes the month of February brings!

Mid-December Update 2025

The steel tube columns and beams have gone up for the Flex classroom’s NanaWall. The NanaWall, a moveable glass wall, will span the majority of the opening to the classroom. As per its name, the “Flex” classroom’s NanaWall can be opened or closed depending on what is going on inside or outside the classroom, allowing students and faculty options for an active or quiet learning space. 

The construction crew is putting up and mudding drywall all over the LRC! This means the infrastructure (framing, plumbing, wiring, HVAC, electrical, insulation) is where it needs to be in the walls. When drywall goes up you can see the blueprints come to life and imagine the finished space.

The crews put up “regular” drywall (the white board typically used in construction), purple drywall (soundboard to create a sound barrier) and crafted curved drywall (so many curved walls in the LRC). They have cut perfectly matched holes for pipes, electrical outlets and IT wiring.  It is very precise and time-consuming work.  

The cement company has poured concrete pads in the basement for the HVAC equipment to sit on.  

The team working on the steam lines have Insulated the exterior lines, one more step in finishing up this part of the project. Structural steel for the addition will arrive in December.

Exciting changes are happening fast, don’t miss the next update!

Mid-November Update 2025

Interior spaces at the LRC continue to take shape.  Heavy gauge studs and framing are going in above door openings on the first floor.  Heavy gauge framing gives the load bearing walls structural support, provides stability and durability, making sure no wall movement occurs when heavy doors are opened and closed.  It also reduces wear and tear over time.

Holes have been cored in the basement wall for new piping.  A special type of core drill bit is used with a drill rig to core holes.  Water is used to cool the drill and to keep the dust down.  Personal protective equipment is a must, core drilling is loud, wet and messy.  A hard hat, safety glasses, ear plugs and gloves are necessary accessories!

“Continued” is again the word of the month.  Continued insulating of hydronic piping, installation of duct work, sprinklers, rough-in of bathrooms, stud wall insulation and electrical rough-in of stud walls is happening now and will happen for a while to come. Drywall is going up on both the first and second floor.

The first section of the rerouted steam line has been placed in the ground and welded to existing lines.  Evacuation and placement of additional lines will be ongoing.  Construction equipment enthusiasts will enjoy the view from the Ransom bridge that goes from Ramp A to the ATC.  It is interesting to watch the activity from that vantage point.

Partial demolition of the northwest penthouse is taking place. 7 feet of concrete is being removed and will be replaced with a new steel portion.  The LRC’s penthouse is not a luxury apartment, for people anyway, it is a place where electrical equipment, chillers, boilers and air handlers live.  It helps protect them from the weather and saves space inside the building.  

That’s what’s happening so far in November.  Check back in a few weeks for another update!

October Update 2025

The LRC is taking shape.  There are lots of exciting new things happening inside and out. 

On the inside, installation of steel wall framing now defines offices and other spaces.  Duct work, sprinkler piping, plumbing and electrical work continues in the building. Insulation of ductwork and piping for energy efficiency is ongoing.  First and second floor bathrooms are being roughed in.  Drywall is going up on the first floor!  So much progress in a month's time.

It is getting easier to look at the framed offices and other rooms and match them to the design on the blueprint!

On the outside, excavators, bulldozers and other earth moving equipment rerouted a steam line on the west side of the building.  This was a huge undertaking to say the least.  Now that excavation and abatement have taken place, everything is set to continue with structural steel installation for the addition.

Please check back in November for the latest updates!

September Update 2025

Infrastructure is the word of the month for the LRC, along with “begin installation of” and “continued installation of.”  

When a building is gutted and is left an empty shell, building infrastructure is a long process with many pieces.  Think plumbing, electrical, heating, cooling, ventilation, stud wall tracks, stud walls and framing to name a few.  There is a lot behind the nicely decorated walls and above the ceilings of a finished building!

Other inside happenings include toilet carriers being installed in 2nd floor bathrooms.  Ever wonder what supports the wall hung toilets all over campus?  Toilet carriers!  A toilet carrier is a structural frame that is behind the finished wall to support wall hung toilets. So yes, even toilets have infrastructure (besides plumbing) and this ensures they won’t fall off the wall (in case you ever wondered how they are held up).

Projects can have unexpected surprises.  September had a surprise!  The sanitary line needed to be replaced and a new one installed. The best-case scenario is to discover something like this early in a project and fix it so it doesn’t cause future issues.

Exterior work included pouring of concrete foundation walls, forming and reinforcement for additional footings and pouring canopy piers.  Several trees were transplanted and have new homes.  Excavation has started on the east side of the building, preparing the outdoor space for a future patio.

The word of the month for October will most likely be infrastructure and maybe for a few months after that, it takes time to get all the supports in place that make a building comfortable.  Please check back soon for more updates!

August Update 2025

Construction is underway at the LRC!  

A noticeable change on the outside of the building is the removal of the concrete retaining walls that surrounded the front of the building.  Excavators and loaders were on site removing, leveling and smoothing the sand in the front of the building.

Infrastructure work is happening on the inside of the building.  Installation has begun on the ductwork vents. The plumbing crew hung the plumbing rollers, clevis and loop hangers on the second-floor ceiling to get ready for the hydronic pipe installation.  Metal studs have been delivered and the layout for the stud walls have been marked on the floors.  Crews poured the elevator pit walls after extensive preparation.  Now footings and piers are being installed for the west addition

Construction will continue for the next 14 months.  Stay in the know and make sure to follow along for monthly updates on this project.

July Update 2025

On the surface, it appears the first part of July at the Learning Resource Center (LRC) has been quiet. However, behind the scenes there is a lot going on! Interior demolition wrapped up, remaining subcontractor bids closed and documentation was submitted to the State of Michigan for approval to move forward. The State approved the bid awards so now Pioneer Construction will begin contacting subcontractors and construction will begin in full force!

Until there are new and visible things happening on the construction end, let’s take a look at color choices and the departments/offices that will be housed on the south side of the first floor.

Interior color choices, do they matter? Yes! Color does matter and is thoughtfully and strategically used in designing interior spaces. The color scheme for the LRC will vary from area to area to create spaces with colors appropriate for the function of the space. 

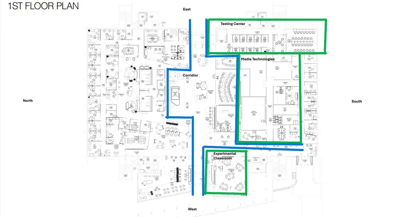
Other renderings this month look at the departments that will be located on the south side of the first floor. The Experimental Classroom, Media Technologies and the Testing Center will be housed here with offices close by. These are off the main corridor that was showcased last month.

Watch for construction activity to begin soon and don’t forget to check back next month for another update!

June Update 2025

June Update

Demolition continues in June and will wrap up by month's end.  Bid opportunities closed for construction subcontractors on June 5.  The next step is the vetting of the subcontractors’ bids and State approval.  Once these processes are completed, construction will get underway in late June or early July.

Now let’s take a peek at some renderings provided by Progressive Companies, the architect for the project.  These show the first-floor layout, the “Fluid Forms” design strategy and the color pallet.

Remaining renderings show the primary entry from Ransom Street and the back patio entrance off of Lyon.  Interior views of the corridor are shown from the primary entrance and from the back. There will be a variety of seating options for studying, collaborating or relaxing in this area.

The central stairs and elevator, circulation desk and flex classroom are all visible from the corridor.

Notice the many features of the biophilic design (used to bring nature into the interior of a building) when scrolling through the pictures. Plants, wood, daylight and nature inspired palettes are used. The “Fluid Forms” design is also evident with many soft edges and rounded corners throughout the corridor.

Please check back next month for another update and to see more renderings of the first floor!

May Update 2025

It is hard to believe all the changes that can happen in such a short time.  May was a whirlwind of activity at the Learning Center (LRC).

The temporary underground placement of the power line in front of the LRC is complete.  Consumers Energy will test the power, make sure it is working properly and come back to remove the pole.  Once this is done, the site will be ready for the construction crane to be brought in.

Demolition activity this month includes removal of walls, bulkheads, stairs, duct work, fans, air handling units, sprinkler systems and the cutting of rebar.  The Mezzanine is no more!  Demolition will continue through mid-June. This month’s pictures show the demolition progress so far.

An onsite pre-bid meeting was held on May 19, giving interested subcontractors the opportunity to walk through the project to see what the construction work entails. The state approved the construction portion of the project and bids will be received for that work on June 5 (demo and abatement were previously bid and awarded).

Check back in next month for another progress update.

April Update 2025

Ransom Street will be busy and bustling with activity this summer. Currently site demolition is taking place at the Library and Learning Commons. By the end of the month Consumers Energy will begin to take down power poles and power lines will temporarily be put underground. This work will protect Pioneer Construction’s workers as a crane will be set up for construction use. Dump trucks, loaders and excavators will be on site during demolition and then the activity will transition to construction trades personnel. 

Fast forward to this time next year. The renderings below, provided by Progressive Companies, the Architect for the project, show the transformation that will take place over the next 16 months. While it might not be as far along as the renderings at this time next year, it will be in the final stretch.

The renderings walk through the creative design thought process for the outside of the building and explain the meaning behind the designs (windows that look like books on a bookshelf, structures that resemble books ends and a welcoming front entrance).

This project is part of a capital outlay through the State of Michigan. GRCC has submitted reports to the State and anticipates State approvals for the project to go out for construction bids soon, which will be an exciting milestone.

While navigating the busyness of Ransom between Lyon and Fountain in the coming months, keep in mind the beautiful addition to the GRCC campus that will be here soon.

Check back next month for another update!

March Update 2025

March has been a busy month for the LRC project.  While not much is visible to the passerby, important milestones are taking place behind the scenes.

Progressive Companies, the architecture firm designing the LRC, met with the GRCC skilled trades group to go over architectural and mechanical plans.  This collaboration and communication is important at this juncture of the project so that the team can give input, ask questions and have knowledge of the infrastructure going into the project.

The same is true for IT and Media Technologies.  Progressive reviewed technology plans with both departments to ensure readiness to connect once the project is complete.

Outdoor equipment and amenities have been moved.  The bike rack has been taken down and picnic tables have been moved to nearby locations on campus.

Quality Environmental will be on site to start abatement the week of March 31.  The following week demolition will begin.

The Facilities Team along with Progressive are providing documentation to the State of Michigan for approvals needed for next steps on the project.  This will be ongoing for the duration of the project.    

Bid opportunities are being prepared for construction work on the project and should be out on the GRCC Purchasing website in April or May.

Many visible changes will start to take place in April.  Check back next month for another update.

February Update 2025

There are many behind the scenes activities going on inside the LRC. In a couple of months, there will be many visible activities happening outside the LRC.

At the end of this month, the LRC will be essentially empty.  That is no small feat.  Volumes of books, furniture, workstations, shelving…all had to find new homes for the project to commence.  Special thanks to Tom Vos, Jason Natte, Mark Fortuna, Jim Schultz, Pat Baldridge and many others for their work on emptying the building. 

Abatement is the first behind-the-scenes work needed in certain interior areas of the project.  In construction terms, abatement is the proper removal of hazardous materials (materials that would not be harmful if left untouched).  A company that has credentials to remove and properly dispose of such materials is hired to do this, thus ensuring removal causes no harm to humans and the environment, and is in strict accordance with state requirements.  The bid went out for this service and was awarded.  Abatement is scheduled to start in April.  Building interior demolition award has also been recently awarded

The bid for all the other contractors and subcontractors will go out for bid in the March/April/May time frame, the first being for the site demolition.  Once bids are awarded, the awarded contractors and subcontractors need to be approved by the State of Michigan.  Since this is a Capital Outlay project with the State of Michigan providing major funding, GRCC works collaboratively with the State, getting approvals at periodic milestones and for contracts awarded for the project.

Design work is ongoing and details are being finalized so that this aspect of the project will be approved and set to go out for bids when the time comes.

Weather permitting, one of the visible outside activities that will start in April, will be Consumers Energy taking down the overhead electrical lines and temporarily putting them underground.  This is needed so Pioneer Construction will be able to safely set up the crane needed for work on the project.

Once demolition starts, the entire patio from the front doors of the LRC to the sidewalk will be torn up.  Consumers will be back working on permanently putting electrical wires underground later in the summer.  Ransom Street will be a busy place come spring and summer.

The first two pictures show a drone view of the LRC.  Its footprint can be seen from the front and back.  (It is the white building to the right of the parking ramp and behind the trees from the rear view).  The scope of the project is huge, it is a big building.

Other pictures show the power lines that will be moved underground, the LRC patio and sidewalk entrances that will be demolished for the addition and the rendering of the welcoming green space and building accessibility that will be added. 

Check back next month for more updates on the LRC Project!

January Update 2025

Walking by the former Library and Learning Commons on Ransom, it might not look like much is happening.  A big, dark, empty, lonely building without its usual hustle and bustle, no books, no occupants, just a few pieces of furniture and shelving remain, waiting to be moved.  

Things aren’t always as they appear though…there are so many things happening behind the scenes!

Facilities has been busy finding different locations on campus to move furniture and has made numerous trips to the storage facility.  A moving company has packed up the remaining books and moved them to a climate controlled area.  The building is just about empty!

The GRCC Leadership and Facilities Team has submitted the design development package to the State of Michigan.  Once approved, the next phase of the project will start.

The Purchasing Department has put out information for an early bid package for demolition.  A walk through with interested vendors was held on Friday, January 17.

Two of the pictures this month show the Steering Committee meeting with the design firm looking at interior finish selections. Flooring materials, color schemes, wood trim, and tile samples were available to see.  

An open house was held on December 4 to share plans for the new LRC space.  See the pictures of the Feedback Boards that were available for comments and suggestions.  These comments and suggestions will be considered in future planning.

The building is waiting for the vibrant transformation to begin.  

Check back next month for another update.

December Update 2024

Infrastructure improvements are the basis for many renovations.  These are not the “fun and exciting” parts, like designing the interior space so that the “atmosphere and feeling” of the building are evident or picking out furniture and the finishing touches . These improvements are generally behind walls, or are walls!  

However, everyone can agree that it is expected that lights will turn on upon entering a room, water will flow when a faucet is turned on and that the room remains at a comfortable temperature.  Infrastructure improvements are the necessary and important framework of a large scale project.

This project will include:
Updating electrical, plumbing, mechanical and HVAC systems
Replacing the roof
Addressing accessibility issues
Reconfiguring interior spaces
Improving energy efficiency
Adding 16,100 square feet to house additional student services

As in all GRCC projects, sustainability is important, reducing the carbon footprint in a building and using less energy is a priority. LEED certification may be pursued for this project.  GRCC will also incorporate sustainability measures from other systems to meet GRCC goals, such as WELL Building, Zero Carbon, and biophilic design strategies 

November Update 2024

The LRC Steering Committee has been meeting with the Architect for the project, Progressive Companies, and the Construction Manager, Pioneer Construction to create a design concept for the building.  In order to establish design principles for the project, the team talked with current department members and held workshops with students to determine the wants and needs for the building.

Some of the main concepts of the design are to create a space that gives all who enter a feeling of belonging and a sense of community.  A welcoming space where students, faculty, staff and community feel connected, one that is inclusive and accessible for all.  A place where students are able to access resources needed to persist, complete their education and be career ready.

Innovative, flexible and adaptive classrooms and learning spaces will support student learning in all modalities.  These versatile spaces will support students’ use of a variety of devices to access course work, plus provide on campus study spaces for classes that are in an online or a hybrid format.  Choices of independent, collaborative and group study rooms will be available.

Stakeholders in the future Learning Resource Center will include:

  • Academic Support and Tutoring
  • Academic Testing Services
  • Counseling & Career Development
  • Disability Support Services
  • Inclusion & Multicultural Affairs
  • Information & Media Technologies
  • Library

This welcoming hub will offer students the ease of accessing and connecting with resources needed to support learning and success while at GRCC and beyond.

October Update 2024

Grand Rapids Community College’s Library and Learning Commons is getting ready for a major renovation.  The 61,268 square foot building that was built in 1972 is in the process of being vacated so the work can begin!  

The services that were housed there have been relocated to temporary locations on campus:  

  • The Library and Learning Commons-5th floor of the Raleigh J. Finklestein (RJF)
  • Media Technologies-Room 180 ATC
  • Academic Support & Tutoring Service-Room 214 ATC
  • Woodrick Center for Inclusion & Multicultural Affairs-Room 347 Student Center

The building will be transformed into a dynamic learning space that will include traditional and innovative library resources, student services, enhanced technology, individual study space and collaborative learning space.  The new name, Learning Resource Center (LRC) encompasses all aspects of the services the building will provide.

This extensive renovation is made possible by Capital Outlay funding of $16.8 million from the State of Michigan.  This will help cover just under half of the project’s $35 million price tag.  Students, faculty, staff and the community will benefit from this funding for years to come.

March Photos 2026

March Photos 2026

February Photos 2026

February Photos 2026

January Photos

January Photos 2026

December Photos 2025

December 2025 Photos

October Photos 2025

October Photos 2025

September Photos

September Photos 2025

August Photos 2025

August Photos 2025

July Photos

July Photos 2025

June Photos

June Photos 2025

May photos

May Photos 2025

April Photos

April Photos 2025

March photos

March Photos 2025

February photos

February Photos 2025

January photos

January Photos 2025

December photos

December Photos 2024

November photos

November Photos 2024

LRC Rendering

LRC rendering
Transfer